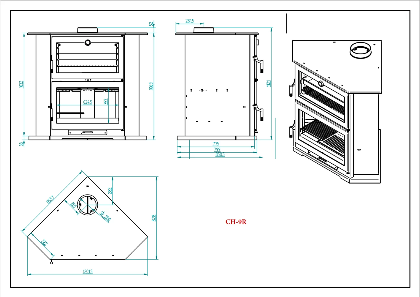
Estufa de Leña de Rincon Modelo CH-9 R
Su diseño sencillo y su horno superior hacen de estas estufas verdaderos objetos de decoración que se adaptan perfectamente a las tendencias del mobiliario tradicional.
Eco Design:
ECODESIGN es una normativa que aprobó la Comisión Europea, que armoniza las normas de todos los países en una única y que afecta a las estufas de combustible sólido, orientada al diseño ecológico, para la reducción de gases de efecto invernadero, en la que se exige una mayor eficiencia energética, menores emisiones de CO y de otro tipo de gases contaminantes.
Características:
– Interior de la cámara de combustión en Vermiculita.
– Equipo con Puertas y Parrilla de fundición.
– Equipo elaborado en chapa hasta 4 mm.
– Pintura Anticalórica inorgánica: 600 ºC.
– Cristal Vitrocerámico: 750 ºC.
– Salida de Humos Trasera: ø 200 mm.
– Regulación de Aire Primario.
– Regulación de Aire Secundario.
– Sistema de Cristal-Limpio.
– Sistema de Doble Combustión.
– Combustible: Leña.
– Tamaño de Tronco: 75 cm.
– Boca de entrada leña: 630 x 300 mm.
– Profundidad Cámara de combustión: 435 mm.
– Boca de entrada del Horno: 600 x 400 mm.
– Profundidad del Horno: 405 mm.
– Interior del horno en Acero Inoxidable. Desmontable.
– Base de horno en ladrillo refractario.
– Termómetro de vaina.
– Volumen Calefacción: 360 m3.
– Potencia Calorífica: 14,5 KW.
– Rendimiento: 75,47 %.
– Emisiones CO: 0,125 %.
– Consumo: 3,29 kg/h.
Incluye:
– Guante.
– Parrilla asados Giratoria Inoxidable 310 x 300 mm.
– Bandeja Acero Inoxidable para Horno de 600 x 400 x 60 mm. Espesor 0,8 mm.
Dimensiones:
– Alto: 112,1 cm.
– Ancho: 120,5 cm.
– Fondo: 82,8 cm.
– Peso: 200 kg.
– Fabricada por fm calefacción.

















Valoraciones
No hay valoraciones aún.